Spatiu comercial Obcini
Descriere spatiu comercial
cDestinatii recomandate
Spatiul este perfect pentru:
Clinica medicala (policlinica, stomatologie, recuperare, analize)
Centru medical cu departamente separate
Sediu de companie (IT, financiar, HR, proiectare, arhitectura)
Birouri premium pentru companii cu arhiva si back-office
Servicii profesionale (avocatura, notariat, consultanta)
Showroom + birouri
Cabinete individuale / servicii specializate
Avantaje principale
Imobil P+1+M, ideal pentru organizarea pe fluxuri: receptie – consult – administrativ – arhiva
Lift disponibil la cerere, daca activitatea il necesita (ex: clinica)
Vitrina generoasa la parter
Grup sanitar si aer conditionat cu incalzire
Compartimentare flexibila, adaptabila oricarei activitati
Posibilitate de branding exterior
Acces facil la transport, artere principale, parcare in zona
Zona cu trafic pietonal si auto solid
Imobilul poate functiona unitar sau pe departamente separate
Configurare recomandata (clinica / birouri)
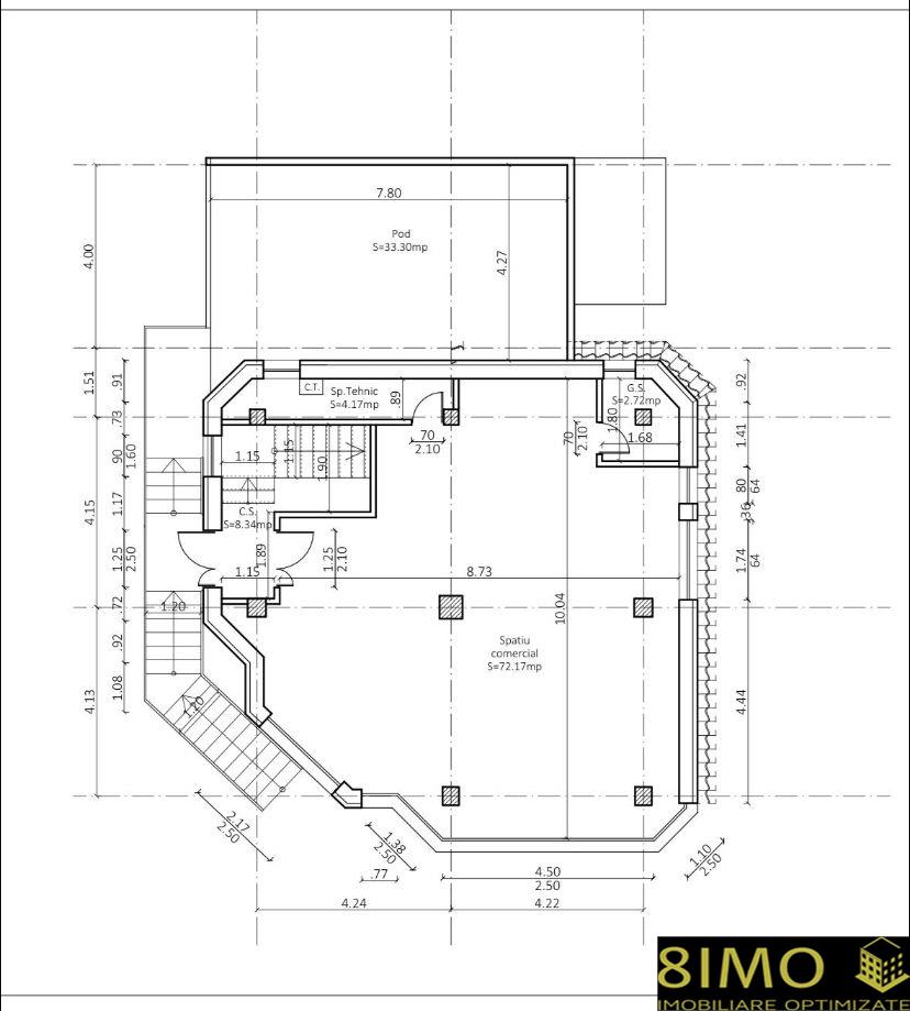
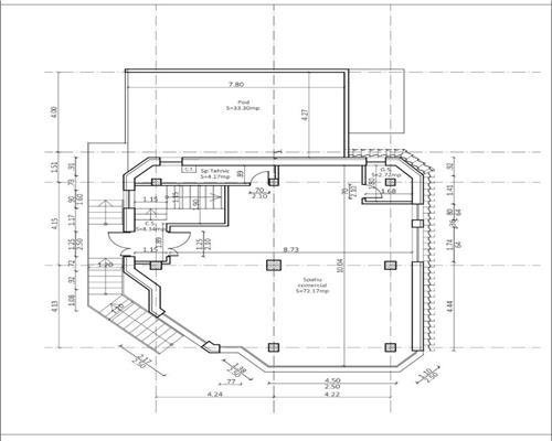
Parter – 98 mp
Receptie / zona de asteptare
1–2 cabinete / birouri
Grup sanitar
Spatiu operativ (front-office)
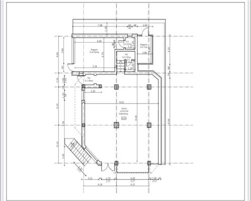
Etaj – 103 mp
Cabinete / birouri suplimentare
Spatii administrative
Sala de sedinte / training
Posibilitate amenajare zone dedicate medicilor / staff-ului
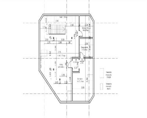
Mansarda – aprox. 60 mp
Arhiva
Contabilitate
Sala server / IT
Depozitare organizata
Disponibilitate
Spatiul este liber si poate fi preluat imediat.
Vizionarile se programeaza telefonic.
Caracteristici
- Numar Camere: 4+
- Zona: Obcii
- Suprafata utila: 260 mp
Caracteristici generale
- Lift: Lift



















